Invertí en el primer desarrollo de Añelo Urbano
Departamentos con renta superior al 10% anual en dólares.
Inversión desde
US$ 80.000
Renta anual superior al
10%
Renta mensual
US$ 900-2600
En el centro de la ciudad, pero lejos del ruido.
Shale Residence es un proyecto único que combina
tranquilidad y naturaleza, en la única zona verde de Añelo.
Invertí en una unidad y obtené tu renta todos los meses sin preocuparte por nada. Nosotros nos encargamos de toda la gestión.
Ubicado en la zona de mayor valor y proyección de Añelo
Ubicación estratégica en la única zona verde de Añelo. El pueblo crece naturalmente para ese área, conectando a través del nuevo puente con el río, el canal de riego y el paseo costero.
A 3 cuadras del centro y a 4 cuadras de la ruta y la estación de servicio, con rápido acceso a los principales pozos y zonas de trabajo.
Ver en Google Maps
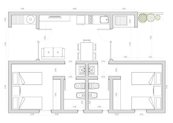
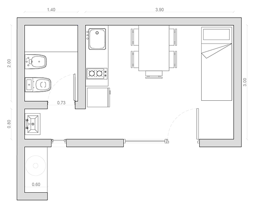
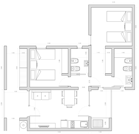
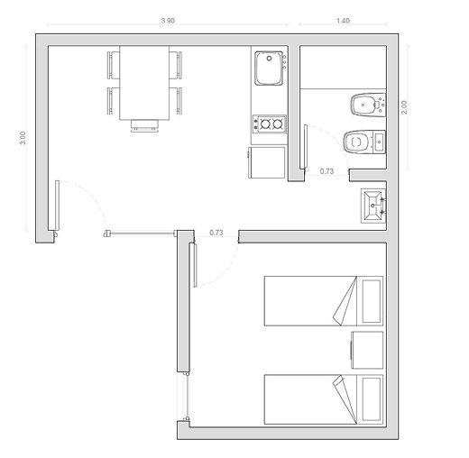
Tipologías de los departamentos
Fotos y avance de obra
Detalles que hacen
la diferencia
Cada detalle fue pensado para ofrecer confort, funcionalidad y calidad. Los departamentos cuentan con terminaciones y equipamiento de primer nivel, cuidadosamente seleccionados para garantizar una experiencia superior.
- Revestimiento plástico interior y exterior.
- Pisos y revestimientos en porcelanato 60x60.
- Aberturas de PVC con DVH.
- Cielorrasos en durlock e iluminación completa.
- Instalaciones eléctricas con tomas TV y USB.
- Climatización por split frío-calor.
- Cocina equipada con muebles, mesada de granito y artefactos.
- Placares completos en dormitorios.
- Baño con sanitarios y griferías de primera marca.
- Termotanque eléctrico y cisterna.
- Puerta principal Oblak línea Innova de chapa negra con barral de aluminio.
- Puertas internas Oblak línea textura simil madera.
Materiales de primer nivel
SISTEMA CONSTRUCTIVO
REVESTIMIENTOS
MATERIALES
PUERTAS
Una oportunidad de
inversión imperdible
Más de 40.000 personas trabajan en Vaca Muerta, una de las principales reservas energéticas del mundo. Añelo crecerá exponencialmente en los próximos años, pero la oferta de viviendas aún es limitada. Invertí en Shale Residence y obtené una renta superior al 10% anual en dólares, con gestión completa a cargo nuestro.
Un nuevo distrito está naciendo en Añelo
Shale Residence es la primera etapa de un mega desarrollo de 31 hectáreas.
Módulo I finalizado
entregado octubre 2025
2 módulos
entrega enero
2026
2 módulos
entrega marzo
2026
2 módulos
entrega mayo 2026
Último módulo
entrega julio 2026
Además proyectamos macrolotes para inversores en la zona con mayor disponibilidad de tierra del área central de Añelo, el único lugar con verdadero potencial de crecimiento.
Conocé Añelo Urbano
Conocé el proyecto
o agendá tu visita.
MÁSTER BROKER
UN PROYECTO EN
DESARROLLA



